AirPack 300h



Rekuperatory AirPack 300h to centrala wentylacyjna idealna do małej i średniej wielkości domów jednorodzinnych oraz większych mieszkań.
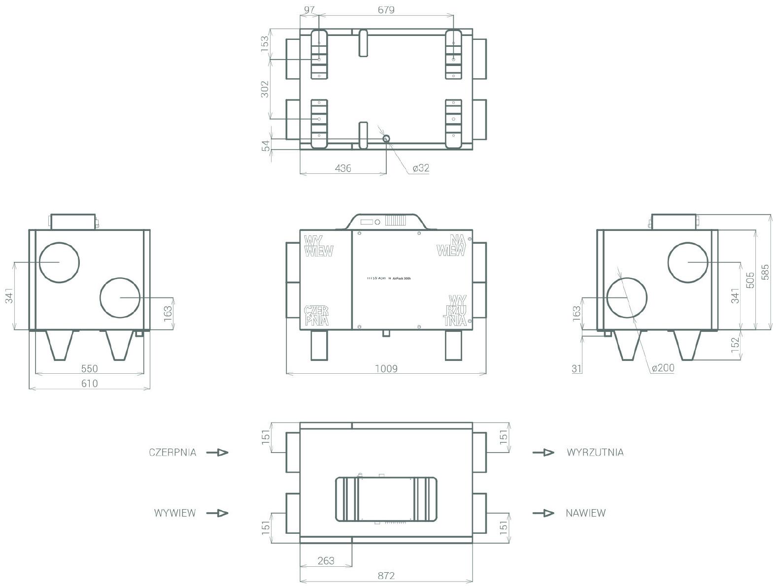
Kompaktowa konstrukcja oraz cicha praca umożliwia montaż urządzenia zarówno w pomieszczeniach jak i w przestrzeniach użytkowych budynku.
| Dane techniczne | |
| Strumień powietrza | 305 m3/h (100 Pa) |
| 295 m3/h (150 Pa) | |
| 278 m3/h (200 Pa) | |
| Sprawność odzysku ciepła | do 92% |
| Maksymalne ciśnienie akustyczne w odległości 1 m | 44 dB(A) |
| Klasa efektywności energetycznej* (dla klimatu umiarkowanego) |
A |
| Regulacja przepływu powietrza | AirPack – automatyczna regulacja oraz równoważenie przepływów przy zastosowaniiu modułu CF lub Calibratora CF lub tradycyjna, płynna regulacja prędkości obrotowej wentylatorów.AirPack Base – tradycyjna płynna regulacja prędkości obrotowej wentylatorów |
| Wymiennik ciepła | przeciwprądowy, tworzywo sztuczne (RecAir) |
| Wentylatory | odśrodkowe z silnikami prądu stałego EC (Soler&Palau) |
| Bypass | sterowany, programowalny |
| System przeciwzamrożeniowy | FPX – elektroniczna płynna regulacja, temperatura rdzenia wymiennika zawsze > 0oC |
| Filtry | Standard: G4 (powierzchnia filtracji 0.28 m2) Opcja: F5 (powierzchnia filtracji 0.78 m2) |
| Zasilanie | 230 V (AC), 50 Hz |
| Maksymalny prąd pobierany przez urządzenie [A] | 4.4 [A] |
| Średnica króćców przyłączeniowych | 200 [mm] |
| Średnica króćca kondensatu | 32 [mm] |
| Masa | 68 [kg] |
| Temperatura pracy | +5 [oC] ÷ +45 [oC] |
*Zgodnie z Dyrektywą 2009/125/EC oraz Rozporządzeniem Komisji Europejskiej nr 1254/2014