Loading...

AirPack 1850 flat

AirPack 1850 flat
AirPack 1850 flat
AirPack 1850 flat

Rekuperator AirPack 1850 flat został zaprojektowany do wentylacji dużych przestrzeni mieszkalnych oraz małych obiektów komercyjnych. Urządzenie jest doskonałym rozwiązaniem dla właścicieli dużych domów dbających o komfort i poszukujących sposobu na obniżenie kosztów użytkowania budynku. Dzięki dużej wydajności urządzenie zapewnia dostawę odpowiedniej ilości świeżego powietrza zarówno podczas codziennego użytkowania jak i w czasie kiedy w budynku przebywa większa ilość osób. Kompaktowa konstrukcja ułatwia montaż urządzenia w przestrzeni budynku.

Dane techniczne
Strumień powietrza NAWIEW 2000 m3/h (100 Pa)
WYWIEW 1700 m3/h (100 Pa)
NAWIEW 1950 m3/h (150 Pa)
WYWIEW 1650 m3/h (150 Pa)
NAWIEW 1900 m3/h (200 Pa)
WYWIEW 1600 m3/h (200 Pa)
Sprawność odzysku ciepła do 93%
Maksymalne ciśnienie akustyczne w odległości 1 m 51 dB(A)
Klasa efektywności energetycznej*
(dla klimatu umiarkowanego)
A
Regulacja przepływu powietrza AirPack – automatyczna regulacja oraz równoważenie przepływów przy zastosowaniiu modułu CF lub Calibratora CF lub tradycyjna, płynna regulacja prędkości obrotowej wentylatorów.AirPack Base – tradycyjna płynna regulacja prędkości obrotowej wentylatorów
Wymiennik ciepła przeciwprądowy, tworzywo sztuczne (RecAir)
Wentylatory odśrodkowe z silnikami prądu stałego EC (Ziehl Abegg)
Bypass sterowany, programowalny
System przeciwzamrożeniowy FPX – elektroniczna płynna regulacja, temperatura rdzenia wymiennika zawsze > 0oC
Filtry Standard: G4 (powierzchnia filtracji 0.78 m2)
Opcja: F5 (powierzchnia filtracji 2.81 m2)
Zasilanie 3 x 400 V (AC), 50 Hz
Maksymalny prąd pobierany przez urządzenie [A] L1: 6.7 [A], L2: 8.7[A], L3: 17.4[A]
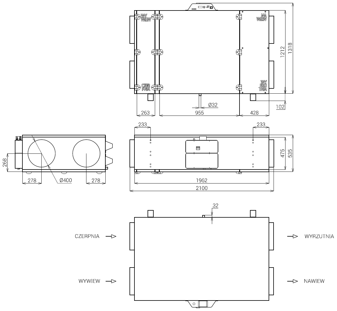
Średnica króćców przyłączeniowych 400 [mm]
Średnica króćca kondensatu 32 [mm]
Masa 205 [kg]
Temperatura pracy +5 [oC] ÷ +45 [oC]

*Zgodnie z Dyrektywą 2009/125/EC oraz Rozporządzeniem Komisji Europejskiej nr 1254/2014